Seowon Golf Clubhouse Design by ITM Yooehwa Architects and Itami Jun Architects is an development story of this building is filled with the architecture philosophy of Jun Itami.
“Through the Materials and details assimilating with the nature and containing the human warmth, constructing the house for those who have been living on the land and for those going to be living on the land, integrating their lives through architecture is my architectural philosophy.”
Basically, Building tries to minimize the use of ornaments, and maximize the uses of natural surroundings as an ornament. It provides comfortable space for visitors with no feeling of shrinkage.
Seowon Golf Clubhouse Design and Architecture









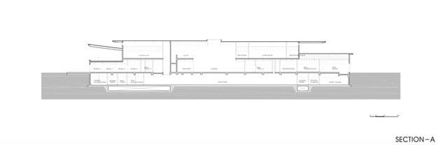
Architect says: The Seowon Golf Club House is located at the outskirt of Seoul called ‘Paju’. The initial building design was motivated from the shape of the contractor’s eye, Jun Itami’s last posthumous work aimed to contain the intensity and genuineness of the contractor seen form his eye. From the elevation the curved roof attracts the viewer attention first; the roof shape was derived from the image of swan landing on the water.
Building exterior achieves the aesthetically balance through the harmony of physicality and colors of different material used. Main entrance located at the south, is finished with aluminum cast, timber, and black brick stack, that the users of the building can feel the warmth of the materials and the gravity of the building mass at the same time.
North elevation of the building is slightly different from the south as it faces the pond and it needs wider vision to achieve the view of the pond from the interior. Large Skylight at the interior hall allows the natural light to fall into the building, that the inside environment and outside environments breaths as a one.




Seowon Golf Clubhouse Design Fact File :
Architects: ITM Yooehwa Architects, Itami Jun Architects
Location: 123-1 Ballang-ri, Gwangtan-myeon, Paju-si, Gyeonggi-do, South Korea
Site Area: 1,270,465.00 ㎡
Area: 3813.0 sqm
Year: 2012
Photographs: Suk Jung Min





- Check this Architectural Drawings also interesting ‘Architectural Drawings of Issam Fares Institute by Ar. Zaha Hadid’








Leave a Comment
You must be logged in to post a comment.